Скрытый линейный диффузор под шпаклевку SDL
- Добавить в избранное
- Задать вопрос
- Добавить в избранное
- Задать вопрос
Скрытый линейный диффузор под шпаклевку SDL

Скрытый линейный диффузор под шпаклевку SDL
Щелевые решетки скрытого монтажа под шпаклевку SDL используются в системах вентиляции и кондиционирования в качестве конечного декоративного элемента инженерной системы в жилых, торговых, и офисных помещениях. Они обеспечивают подачу свежего или удаление загрязненного воздуха из помещений.
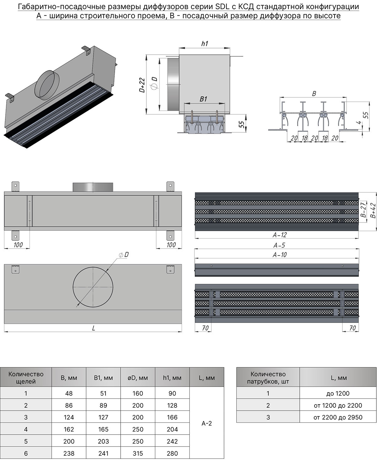
Конструкция профиля решетки предусматривает фланец с углублениями и отверстиями для лучшей адгезии финишного материала по длине решетки и заглушки с торца. После монтажа решетки, видимой частью в помещении остаются только щели.
Щелевые решетки SDL изготавливаются из экструдированного алюминиевого профиля АД31 по ГОСТ 22233-2018. По умолчанию корпус решетки окрашивается в стандартный белый цвет RAL 9016М матовый, а внутреннее исполнение в чёрный цвет RAL9005М матовый. По индивидуальному заказу возможна окраска в любой цвет по шкале RAL. Статическая камера изготавливается из оцинкованной листовой стали 0,4 - 1,5 мм в зависимости от размера и пожелания заказчика. По умолчанию КСД поставляется в неокрашенном виде.
Особенности решетки SDL:
- количество щелей - 1-6;
- ширина щели 20;
- длина щели от 200 до 3000 мм с любым шагом;
- фланец имеет углубления со специальной формой паза для лучшего сцепления шпаклевки и исключения ее отслоения;
- полка под шпаклевку 2,3 мм;
- возможна дополнительная комплектация клапаном расхода воздуха, выравнивателем воздуха, направляющими для регулировки потока;
- минимальный запас запотолочного монтажного пространства - 110 мм;
- присоединение к воздуховодам 100, 125, 160, 200 мм, 204х55 мм, 110х55 мм, а так же системы BLAUFAST;
возможна модульная сборка в непрерывную линию из составных секций, в том числе угловых.
Для подключения к системе вентиляции и кондиционирования используется камера статического давления (адаптер) - КСД или КСР.
⚠ В комплект с решеткой не входит и заказывается отдельно.

Для подключения диффузора к системе воздуховодов используется камера статического давления - КСД или КСР.
Камера статического давления является элементом систем вентиляции и кондиционирования воздуха, они обеспечивают равномерное распределение воздушных масс через сечение решетки. КСД состоит из стального корпуса с круглым патрубком для подсоединения к воздуховоду. КСР дополнительно оснащены устройством, регулирующим объем подаваемого воздуха, которое устанавливается во входном патрубке.

Статическая камера изготавливается из оцинкованной листовой стали 0,4 - 1,5 мм в зависимости от размера и пожелания заказчика. По умолчанию все изделия поставляются в неокрашенном виде.
Типы КСД:
- КСД - стандартная камера с круглой врезкой;
- КСД-У - уменьшенная камера с круглой врезкой;
- КСД-У-О - уменьшенная камера с овальной врезкой;
- КСД-У-П - уменьшенная камера с прямоугольной врезкой.
Уменьшенная камера статического давления позволяет максимально сохранить полезную площадь помещения за счет уменьшения монтажного пространства.
Размер монтажного пространства (W) напрямую зависит от размера подключаемого воздуховода - чем меньше воздуховод, тем меньше адаптер для диффузора. В каталоге приведены рекомендуемые размеры воздуховода, но по запросу заказчика возможно изготовить адаптер с любой врезкой.















Характеристики
-
ПроизводительООО "ЗАВОД ВРК"
-
Серия решеткиDL
-
Вид решеткиЩелевые
-
Способ монтажаСкрытого монтажа
-
РегулировкаРегулируемая
-
БрендTHE GRILLES
-
ФормаПрямоугольные
-
МатериалАлюминий
-
КонструкцияНеразборная
-
Предоплата100%
-
Этап установкиМонтаж с нуля
-
Тип монтажаПод шпаклевку
-
Количество щелей1 щель и более
Особенности
Чертеж
Отзывы
Отзывов нет. Станьте первым, кто оставит отзыв!
Пример заказа
- Похожие товары
- Хиты продаж
- Распродажа
- Популярное
Способы монтажа
Мы располагаем огромными возможностями и выбором
Получите консультацию
Оставьте свои контактные данные и мы вам перезвоним!